| L'Arquitectura és l'Art de crear espais, exteriors o interiors, coberts o descoberts. |
| 1. Materials Les construccions es fan amb diferents materials que s'usen de forma diferent, segons l'edificació sigui antiga o moderna. Aquest edifici, un temple, està fet amb fang sense coure; això és possible perquè Nou Mèxic és una regió desèrtica, on mai plou: el fang no s'humiteja; a un lloc plujós, l'edifici es desfaria en poc temps. |
![]() VROMAN (fotògraf): Missió de Sta. Clara, Nou Mèxic, 1899. A: NEWHALL, The History of Photography, 138. |
|
![]() BAYARD (FOTÒGRAF): La Madelaine, Paris. A: NEWHALL, The History of Photography, 57. |
2. Sistemes
constructius El pes dels materials es descarrega cap baix, portant-se als fonaments, segons criteris que varien en funció del tipus de coberta usada. Aqui, el pes de la coberta es suportat per bigues que descarreguen en murs i columnes |
|
|
No és el mateix fer un cinema, com aquest que veiem, que la casa d'una família, o una fàbrica, o una escola. Els edificis es projecten, variadament, pels diferents usos. A aquesta sala, per primera vegada, tot està en funció de la pantalla, al fons, on es projecta la pel·lícula. |
![]() MENDELSOHN: Cinema Universum (1926), Berlin. A: ZEVI, Espacios de la Arquitectura Moderna, 239. |
|
![]() LE CORBUSIER, Casa-estudi del pintor Ozenfant (1922/4), exterior i interior. A: ZEVI, Espacios de la Arquitectura Moderna, 147. |
![]() 4. Espai Els edificis tenen un exterior, que tanca el volum, és a dir: l'espai, creant un fora i un interior, que fa un dins. El visitant pot, un cop ha vist la façana i l'ha envoltada, captant el ple, penetrar a l'interior, fent llavors l'experiència del buit. Aqui hi ha una casa que Le Corbusier, un dels arquitectes més interessants del segle XX, va fer; veiem exterior i interior, i ens ajuda a entendre aquestes coses; cal fixar-se en les finestres de la segona planta (per fora): després es comparen amb l'habitació (interior); són les mateixes. |
|
| 5. ¿Perquè
es construeixen els edificis? Hi ha un client (una persona o institució) que té necessitat d'un espai i diners per construir-lo; aquest busca un arquitecte que li pugui projectar (és a dir, pensar, dibuixar, calcular el cost...) i construir. De la relació entre aquestes dues parts va sorgint la idea de l'edifici: ells són els contructors. Un cop ben aclarit l'objectiu del client, l'arquitecte, amb la col·laboració de gent de molts oficis (paletes, fusters, pintors, lampistes...), dirigeix la construcció de l'edifici. |
|
| 6. Símbols Hi ha alguns elements que donen sentit a un edifici. Aqui veus la nau d'un temple, il·luminada pel raig del Sol de la tarda, l'últim sol. Aquesta llum és el Sol de la Justícia i simbolitza el Judici Final, quan tots els morts ressucitaran per ser jutjats. És una llum que il·lumina el temple però, alhora, il·lustra una idea religiosa i és un símbol. |
![]() Església canònica de Cardona, la nau, mirant cap el Oest, 1040, A: JUNYENT: Catalogne Romane, 13. |
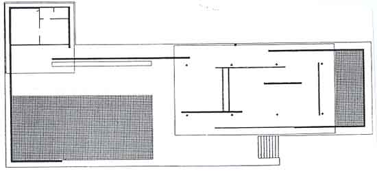
| 7. Registres Per coneixer els edificis, per que els constructors tinguin una idea ben precisa del que han de fer, usem els plànols, que són expressions visuals molt exactes de les diferents parts d'una construcció. |
|
![]() MIES VAN DER ROHE: Pavelló d'Alemanya, planta, 1929, Barcelona |
|
| 8.Mies Per acabar, veurem un edifici, un dels més importants del segle XX, i que es troba a Barcelona: El Pavelló d'Alemanya a 'Exposició Universal de Barcelona, de 1929, de Mies van der Rohe. |
![]() MIES VAN DER ROHE: Pavelló d'Alemanya, façana, 1929, Barcelona |
Començarem amb els materials |